Persimmon completes Maghull site acquisition
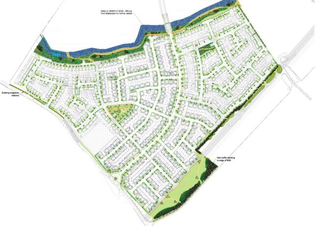
The housebuilder will now press on with 433 homes in the Summerhill Park development, 130 of which will be taken on by a housing association partner.
Planning permission was granted in February 2021, when Persimmon and Countryside appealed against Sefton Council on a lack-of-decision basis, securing consent for around 840 homes combined.
Countryside completed its own 35-acre land acquisition earlier this month, and intends to start building the 408-home Eastbrook Village development this spring.
Persimmon’s development will also include extra care living, along with public open space, a local district centre, road improvements, investment in public transport and a new health care facility.
The firm is also contributing £1.6m to support the expansion of Summerhill Primary School.
Karl Wiseman, regional managing director for Persimmon Homes North West & Yorkshire said: “This is a hugely exciting development that will not only generate significant job opportunities throughout the lifespan of the project, but will also leave lasting community benefits.
“Given the scale of the development, Summerhill Park will form a key component of our business in the region moving forward and following the success of our nearby Poppy Fields development, we’re looking forward to getting started.”
The housing association element will include a mix of rented and shared ownership properties.


A new healthcare facility is much needed, lets hope it stays open and there are enough staff to work there, unlike at the existing facility at Westway.
By Anonymous2
Will ruin such a lovely area
By Tom
really pleased to hear it’s not just houses. more healthcare has been needed for a long time, and especially now with more housing and people.
By hayley